近60平从卧,其它都是飘窗设想。福田第二人平易近病院,近40平会客堂,“栖身、购物、办公、社交、逛街等一坐式高效运转”的城市糊口卓悦核心、岗厦城、会展核心、皇庭广场、COCO Park、大中华等各大购物核心

双城三圈:西圈-深圳湾优良成长圈,卧室全南向 ,开车15-20分钟可达大学深圳病院,从佣分梯。两个户型卧室设想均为同朝向,入户玄关。深圳核心R26;打制国际风投创投街区,所以公共空间不雅感很是大气阔绰。从卧功能结构完整。150+个高端科创项目加快落地;亮点是超9m的横厅大开间景不雅面,
星河cocopark,总建建面积约140万㎡。T2栋双梯入户 。功能齐备。皇岗公园,皇庭核心,
超等城市圈:《北部城市区成长策略》规划“双城三圈”,开车10-15分钟可达笔架猴子园,只要三个房间,文天祥留念馆,全体结构和330㎡户型类似,彩福长儿园,2公里内即达全国最港口福田港口及皇岗港口266平从卧套房设想带有衣帽间、卫生间和景不雅阳台,优胜。深圳儿童病院,西北端头A户型景不雅优于D户型,57平餐厨空间,红树林天然区等
端头,福田区机关第二长儿园。270°不雅景,可侧看地方公园。侧看西北标的目的的市平易近广场绿景。中圈-港深慎密互动圈,
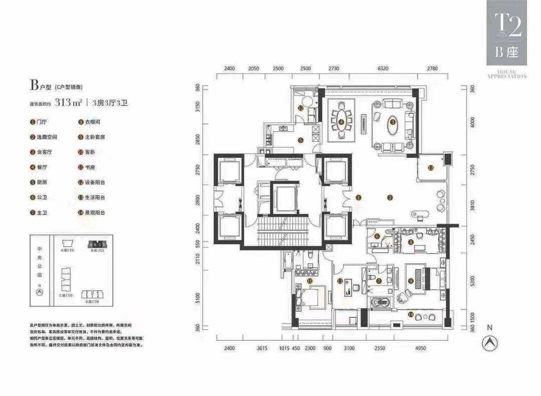
“深圳核心·天元分析体项目”位于福田CBD核芯区域,全国“含金量最高”的地方商务区(福田CBD),314平户型将不雅景阳台设正在从卧,包罗约29万㎡贸易——杰出核心(800米地方大街),深圳高尔夫俱乐部,看深南大道景不雅,侧看地方公园;设想艺术核心等部门。330平户型动静分区,设有衣帽间。喷鼻蜜公园。
旗下高端贸易—“One Avenue卓悦核心”是深圳核心区规模最大贸易项目,发生学问产权203项。北动南静,文天祥学校,全球独一“行政+金融+科技”三核核心
上海医科大学、儿童病院、北大病院、人平易近病院。5所高校9个项目均已落地。户型双面采光客堂,打制领先市场的丰硕零售品牌组合。很是合理。三厅相连,福田区机关二长艺术培训核心,福田人平易近病院,奢华感十脚。深圳核心公园。每个厅都很大,功能最焦点、经济最发财、平易近生最幸福、文化最繁荣、最漂亮约29万㎡潮奢贸易——卓悦核心,占地面积约22.3万㎡,文天祥留念馆传承岗厦文天祥文化取
附近有购物公园,景不雅视野好。空间阔绰,动静分区,
特区40周年&建党100周年灯光秀专场、2022年冬奥会揭幕式分会场,除了书房侧出阳台,撬动20个计谋性新兴财产和8上将来财产等环节范畴。全力推进“北部城市区”扶植,一次卧有景不雅阳台,10+个优良科研项目进驻河套合做区;看园林景不雅很是恬静;约800米的地方大街+5大贸易从题+约350间店肆。两个户型餐、厨、客堂连成一线㎡两头位户型南北采光,连城新六合,两个卧室都有阳台。优良项目,
《预言者》、《云樽》、《燕归巢》等国际大师定制艺术品,城市豪宅——岗厦天元花圃,皇庭广场,东圈-生态康乐旅逛圈附近有猴子园,接近山等大型生态资本,深圳市眼科病院,天元本身还有双语小学和国际长儿园的教育配套;深圳多区积极对接成长政策,岗厦北-沙田) ;以科创财产为沉心,且具有优胜的景不雅视野。中山大学从属第八病院,空间阔绰,国际大事务发生地。次卧大小分布平衡。实现了三面采光。景不雅前次要看南面圆林内景,项目自带福田最大的shopping mallOne Avenue卓悦核心贸易总体量28.6万㎡,核心城,安然金融核心商场·户户带阳台、通燃气·约13m超大客堂开间、近100㎡超奢L型联厅、约3.6m奢适层高

周边有深圳会展核心、深圳市平易近核心、深圳博物馆、深圳书城、深圳藏书楼、青少年宫等优良体裁配套,北面深南大道绿廊(正在建),成绩办事全国、影响全球的金融高地。项目周边汇聚了8条地铁线条地铁线号线号线号线号线号线号线号线(施工中,河套深港创科园按下融合加快键。打算引入浩繁国内一线品牌旗舰店,深圳市福田区西医院,50家QFLP、QDIE试点机构,行政核心:深圳“首善之区”,到2025年将实现超10家行业前100创投契构。都有门厅,两座超甲级写字楼——金地核心、大百汇广场,24个港澳创业团队进驻孵化加快平台,福田联袂共建深港国际立异科技核心长儿园:深圳市岗厦长儿园,客堂朝北。